CREAL住吉

- 管理/共益費 -

東京都江東区扇橋2丁目

半蔵門線「住吉」駅徒歩7分

都営新宿線「住吉」駅徒歩7分

価格
- 管理/共益費 -
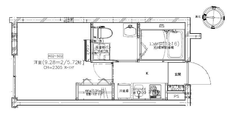
間取り/面積
-/-
所在地
東京都江東区扇橋2丁目
築年
2021年3月(築4年)
交通

半蔵門線住吉」駅 徒歩7分

都営新宿線住吉」駅 徒歩7分

CREAL住吉の基本情報

物件名
CREAL住吉
価格
-
管理/共益費
-
築年月
2021年3月(築4年)
総戸数
-
所在地
東京都江東区扇橋2丁目
交通

半蔵門線住吉」駅 徒歩7分

都営新宿線住吉」駅 徒歩7分

CREAL住吉の詳細情報

設備条件
  • 敷地内ごみ置き場
  • インターネット対応
  • オートロック
  • 宅配ボックス
設備(その他)
    -
用途地域
-
戸数
- / -
取引態様
仲介
備考
近くにはファミリーマート ヤマキ千田店(徒歩3分)がありちょっとした買い物に便利です。朝に慌てることなく行動するために駅から徒歩7分の駅近マンションはいかがでしょうか。多方面にアクセス可能な、2沿線利用できる物件です。敷地内にはごみ置き場も設置されています。半蔵門線住吉周辺の不動産情報のことならぜひお気軽にinfo@shodai-home.comより翔大ホームまでお問い合わせください。

CREAL住吉のコメント(おすすめポイント)

ファミリーマート ヤマキ千田店まで徒歩3分と近場にコンビニがあるのもポイント。こちらの物件は、敷地内ごみ置き場のある物件です。こちらの物件はマンションです。利便性の高い設備も充実した、高ニーズな2021年築の物件です。当社スタッフが江東区地域の不動産情報をご提供いたします。細かい条件を指定してinfo@shodai-home.comまでご連絡ください。

近隣の物件

  1. 江東区千田

    1K (25.75㎡)

    10.4万円

  2. 江東区森下4丁目

    1LDK (34.56㎡)

    14.6万円

  3. 江東区亀戸7丁目

    1K (25.65㎡)

    10.45万円

  4. 江東区東陽5丁目

    1DK (33.72㎡)

    11.4万円

CREAL住吉

お気軽にお問い合わせください

LINEからお問い合わせ 無料お問い合わせ

翔大ホーム

03-5830-3540

10:00~19:00

(休:水曜日)