日神パレステージ板橋

14万円 管理/共益費 8,000円

東京都北区滝野川7丁目

埼京線「板橋」駅徒歩4分

価格
14万円 管理/共益費 8,000円
間取り/面積
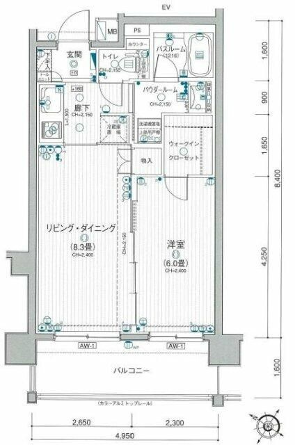
1DK/40.05㎡
所在地
東京都北区滝野川7丁目
築年
2006年12月(築19年)
駐車
交通

埼京線板橋」駅 徒歩4分

日神パレステージ板橋の基本情報

物件名
日神パレステージ板橋
価格
14万円
管理/共益費
8,000円
築年月
2006年12月(築19年)
総戸数
-
所在地
東京都北区滝野川7丁目
交通

埼京線板橋」駅 徒歩4分

日神パレステージ板橋の詳細情報

設備条件
  • エレベーター
  • 敷地内ごみ置き場
  • 光ファイバー
  • オートロック
設備(その他)
    -
駐車場/月額
無/-
用途地域
-
戸数
- / -
取引態様
仲介
備考
こだわりポイント満載の日神パレステージ板橋。埼京線板橋駅周辺物件:日神パレステージ板橋。共用部には敷地内ごみ置き場・エレベータなどが備わっておりとても充実しています。駅から徒歩4分というアクセス良好な駅近物件はいかがですか。こちらの物件はマンションです。物件についての詳細情報をお求めの方は、翔大ホームへご連絡下さい。TEL【03-5830-3540】。

日神パレステージ板橋のコメント(おすすめポイント)

「日神パレステージ板橋」のここがイチオシ。日神パレステージ板橋:埼京線板橋駅にも近くて便利。共用部にはエレベータ・敷地内ごみ置き場などが揃っており、とても充実しています。こちらはマンションタイプになります。こちらは初期費用をカードでお支払いいただける物件なので、支払い手続きの手間が省けます。翔大ホームがご紹介する、オススメの賃貸物件がいかがでしょうか?当社は豊富な賃貸情報を取り扱っています。きっと気になる物件が見つかるでしょう。

日神パレステージ板橋で募集中の物件

  1. 8階

    12.11坪 (40.05㎡)

    14万円(11560.69円/坪)

近隣の物件

  1. 北区赤羽1丁目

    1R (25.29㎡)

    9.6万円

  2. 北区東十条4丁目

    1K (27.71㎡)

    10万円

  3. 北区岸町1丁目

    1K (25.93㎡)

    9万円

  4. 北区田端5丁目

    1K (26.61㎡)

    8.9万円

日神パレステージ板橋

お気軽にお問い合わせください

LINEからお問い合わせ 無料お問い合わせ

翔大ホーム

03-5830-3540

10:00~19:00

(休:水曜日)